1. Przedmiotem opracowania jest projekt koncepcyjny zagospodarowania terenu na osiedlu JAR w Toruniu dla zadania pn. „Zagospodarowanie turystyczno-rekreacyjne terenów
na osiedlu JAR"
na osiedlu JAR"
2. ZAKRES RZECZOWY KONCEPCJI ZAGOSPODAROWANIA TERENU
2.1 rekultywacja stawu na dz. o nr geod. 182 wraz z utworzeniem skweru
2.2 uporządkowanie drzewostanu, wytyczenie ścieżek biegowych i alejek spacerowych biorąc pod uwagę m.in. miejsca wydeptanych szlaków
2.3 zagospodarowanie rekreacyjno-wypoczynkowe (siłownie zewnętrzne, ogólnorozwojowy plac zabaw dla dzieci podzielony na sektory w zależności od wieku, obiekty małej architektury, nasadzenia krzewów, traw ozdobnych, bylin, założenie trawników, ustawienie edukacyjnych tablic zabawowych o tematyce przyrodniczej, wybieg dla psów, mini amfiteatr, dostosowanie funkcjonalne obszaru do potrzeb osób niepełnosprawnych i wykluczonych (w tym likwidację barier architektonicznych dla zwiększenia poziomu bezpieczeństwa użytkowników tego terenu, energooszczędne oświetlenie, monitoring wizyjny)
2.2 uporządkowanie drzewostanu, wytyczenie ścieżek biegowych i alejek spacerowych biorąc pod uwagę m.in. miejsca wydeptanych szlaków
2.3 zagospodarowanie rekreacyjno-wypoczynkowe (siłownie zewnętrzne, ogólnorozwojowy plac zabaw dla dzieci podzielony na sektory w zależności od wieku, obiekty małej architektury, nasadzenia krzewów, traw ozdobnych, bylin, założenie trawników, ustawienie edukacyjnych tablic zabawowych o tematyce przyrodniczej, wybieg dla psów, mini amfiteatr, dostosowanie funkcjonalne obszaru do potrzeb osób niepełnosprawnych i wykluczonych (w tym likwidację barier architektonicznych dla zwiększenia poziomu bezpieczeństwa użytkowników tego terenu, energooszczędne oświetlenie, monitoring wizyjny)
3. PROJEKT KONCEPCYJNY ZAGOSPODAROWANIA TERENU
3.1 ZAŁOŻENIA OGÓLNE, CELE
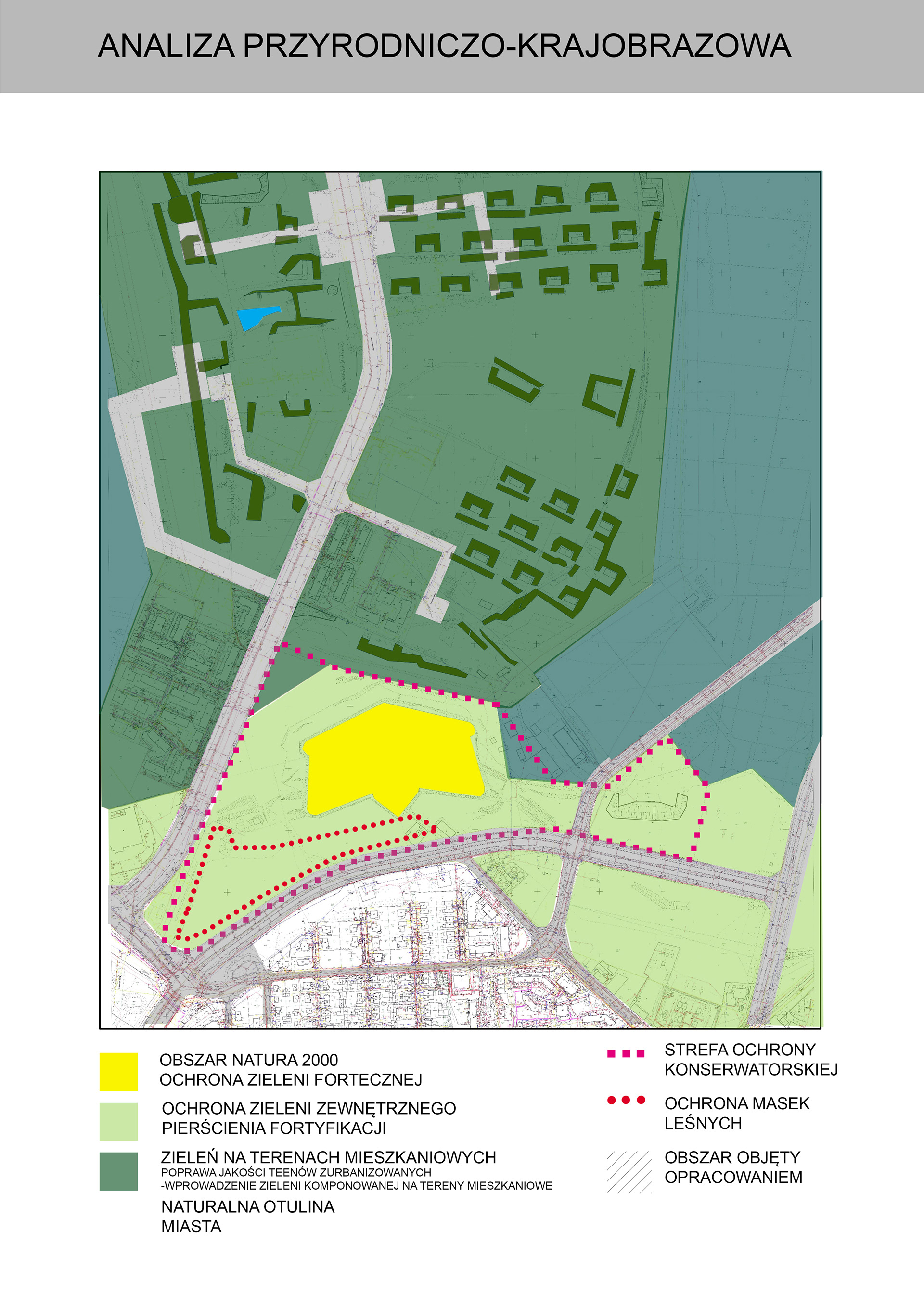
Zamierzona inwestycja ma na celu stworzenie warunków dla rekreacji w otoczeniu zieleni niskiej i wysokiej, w szczególności pod kątem wypoczynku rodzinnego o charakterze ogólnodostępnym oraz o uzupełniającej funkcji turystycznej. Celem nadrzędnym proponowanej koncepcji jest określenie wspólnego, jednolitego wyrazu architektonicznego przestrzeni publicznej w celu nadania jej łatwo rozpoznawalnego charakteru decydującego o jej indywidualnej nowej tożsamości w kontekście historycznym, kulturowym i społecznym. Zbiornik wodny zostanie rekultywowany oraz zaadaptowany na cele rekreacyjne.
Zamierzona inwestycja ma na celu stworzenie warunków dla rekreacji w otoczeniu zieleni niskiej i wysokiej, w szczególności pod kątem wypoczynku rodzinnego o charakterze ogólnodostępnym oraz o uzupełniającej funkcji turystycznej. Celem nadrzędnym proponowanej koncepcji jest określenie wspólnego, jednolitego wyrazu architektonicznego przestrzeni publicznej w celu nadania jej łatwo rozpoznawalnego charakteru decydującego o jej indywidualnej nowej tożsamości w kontekście historycznym, kulturowym i społecznym. Zbiornik wodny zostanie rekultywowany oraz zaadaptowany na cele rekreacyjne.
Proponowana wizja ukształtowania przestrzeni wpisuje się zarówno w skali lokalnej całego systemu miejskiego w zakresie tras pieszych i rowerowych.
Starannie dobrane elementy przestrzeni mają w zamyśle być odpowiedzią na potrzeby przyszłych mieszkańców. Park ma być generatorem aktywności jak również oazą spokoju dla mieszkańców nie tylko sąsiadującego osiedla, jak również pozostałych dzielnic północnego Torunia. Duży obszar projektu pozwala spełnić wszystkie te wymagania.
Założenia kulturalno-rozrywkowe, wielofunkcyjność przestrzeni oraz możliwa bogata oferta wydarzeń mają integrować mieszkańców osiedla jak i okolic.
Założenia kulturalno-rozrywkowe, wielofunkcyjność przestrzeni oraz możliwa bogata oferta wydarzeń mają integrować mieszkańców osiedla jak i okolic.