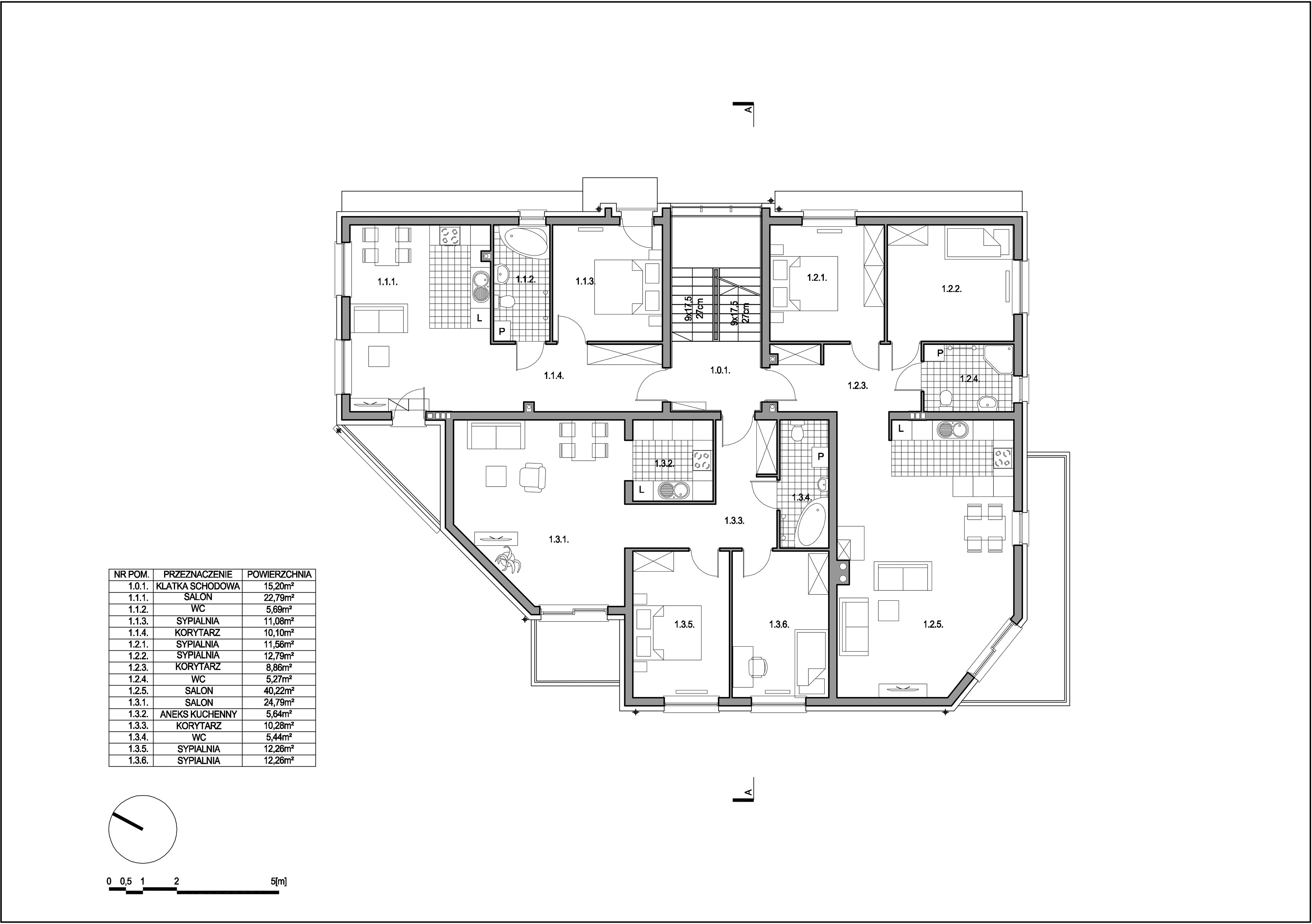
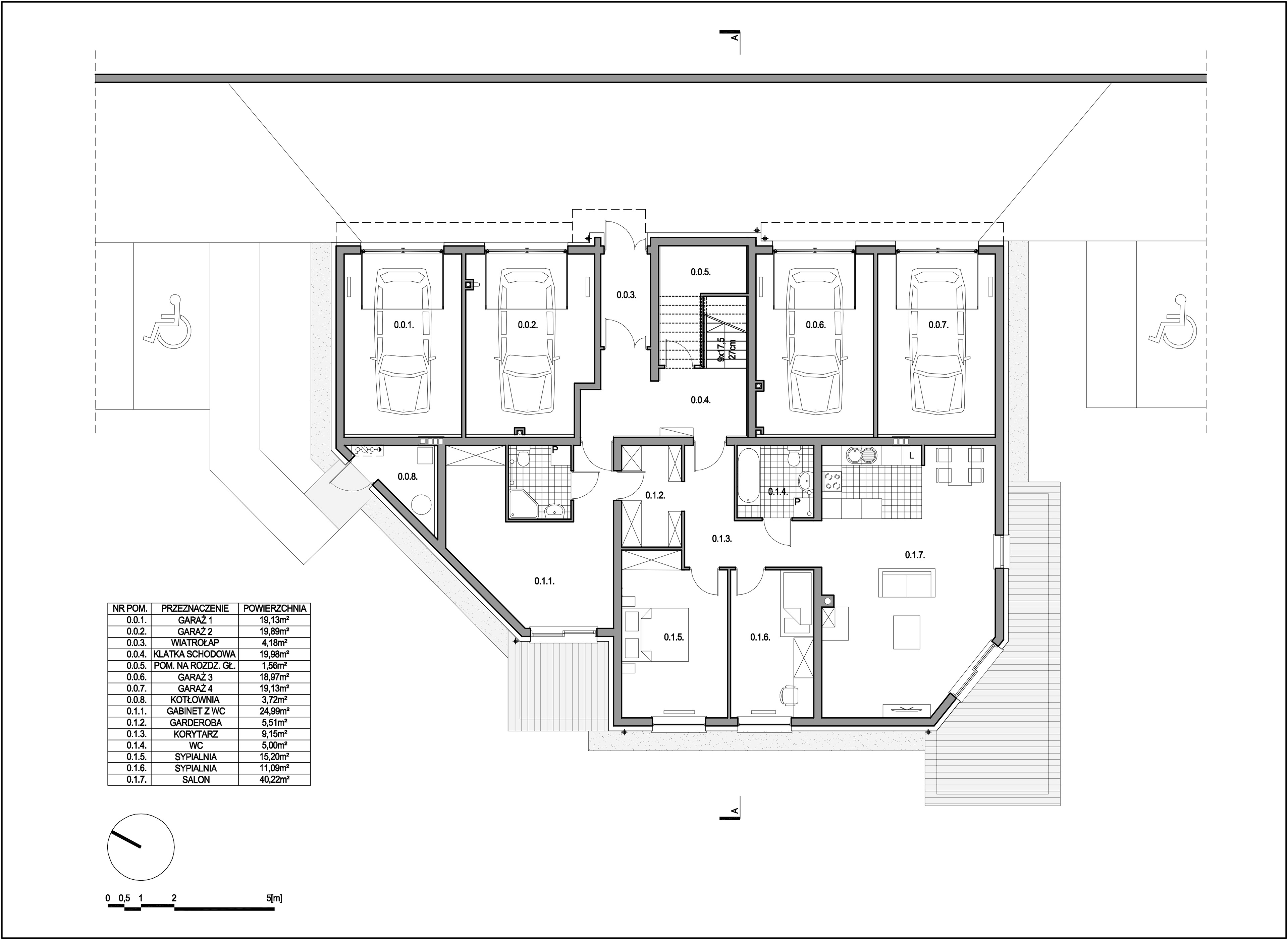
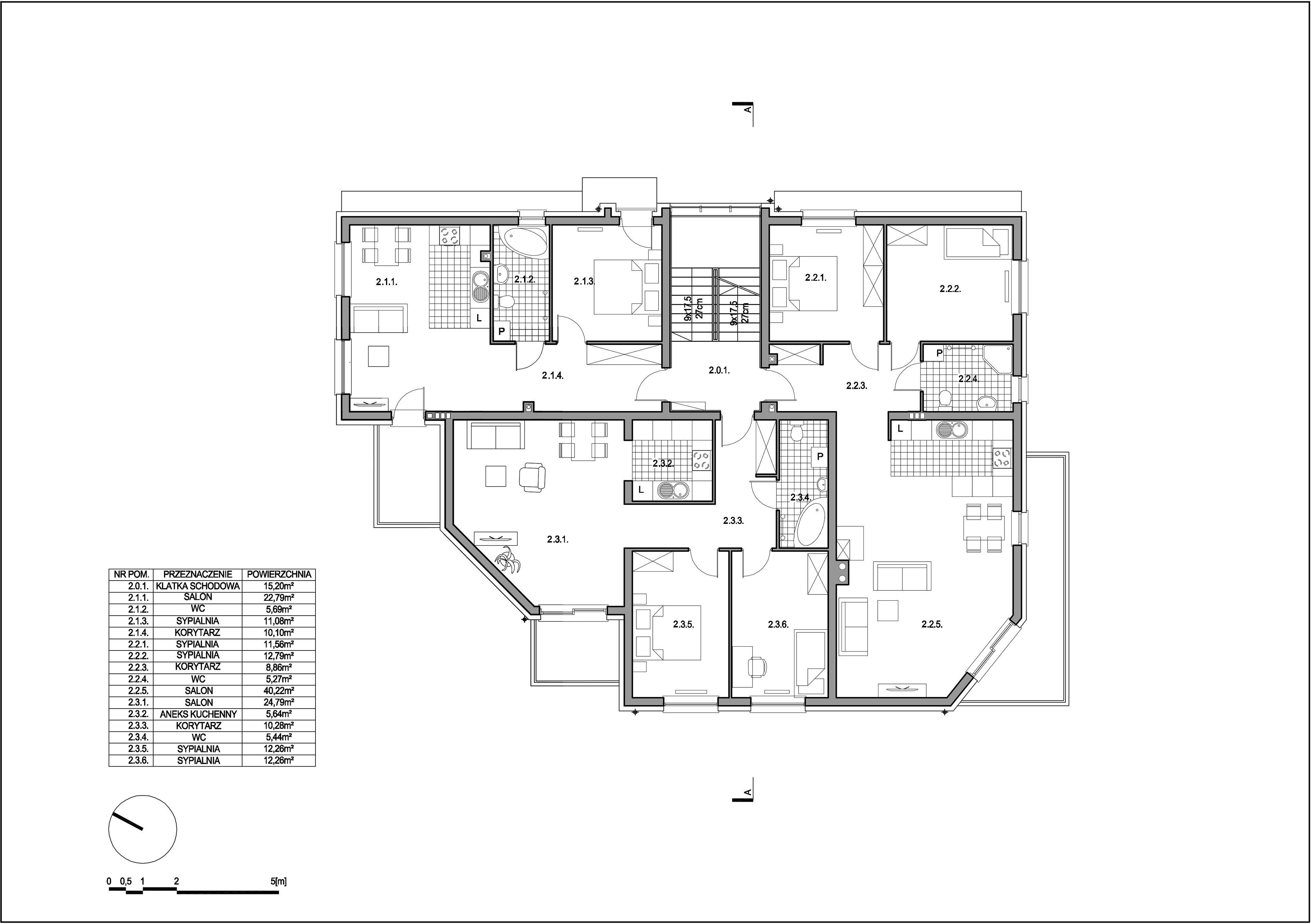
Przedmiotem opracowania jest projekt budowlany budynku mieszkalnego wielorodzinnego wraz z infrastrukturą techniczną. Projektuje się budynek trzykondygnacyjny z poddaszem użytkowym, wykonywany w technologii tradycyjnej, z dachem dwuspadowym w konstrukcji drewnianej. W zakresie opracowania jest również wykonanie projektów instalacji wewnętrznych gazowej, wod-kan, elektroenergetycznej i centralnego ogrzewania
Powierzchnia terenu  1064,0m2
Pz budynku 257,5m2
Pu 745,27m2
Kubatura budynku brutto 2977,28m3
Back to Top